Condo Apartment Property

1926 Lake Shore Boulevard W #2706, Toronto

Details

Property ID
W12944306
Status
Leased (On market for 8 days)
Property Type
Condo Apartment
Style
Multi-Level
Area
700-799 SqFt
Garage Spaces
1
Basement
None
Pets Permitted
Yes-with Restrictions
Air Conditioning
Central Air
Heating Type
Heat Pump

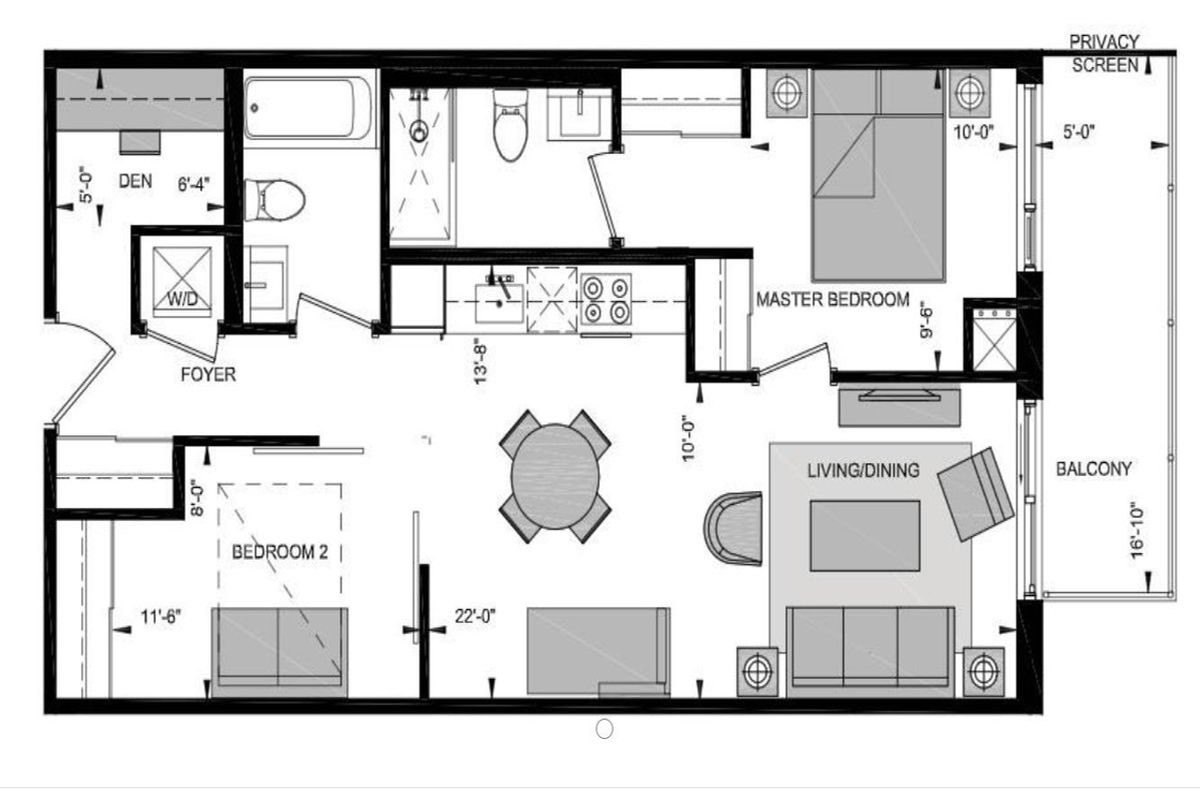
Description

Wake up to stunning views of the Toronto skyline, Lake Ontario, and the natural beauty of High Park right from your window. This bright, brand new 2-bedroom plus den suite offers 2 full bathrooms and a spacious layout that's perfect for both relaxing and entertaining. Enjoy floor-to-ceiling windows, 9-foot ceilings, and a modern kitchen with built-in stainless steel appliances and stylish finishes throughout. The southeast exposure fills the home with natural light and showcases breathtaking, unobstructed views-including Grenadier Pond and the lake. Located in one of Toronto's most desirable west-end neighborhoods, you're just steps from the waterfront, Sunnyside Beach, great restaurants, shops, and everyday essentials. Public transit is right at your doorstep for easy commuting. A beautiful place to call home-don't miss it! Stainless steel fridge, built-in cooktop, oven, dishwasher, and microwave. Includes washer & dryer, all window coverings, and existing light fixtures. Comes with 1 parking space and 1 locker. (both on same level) ...

Continue Reading Show Less

Amenities

Concierge, Guest Suites, Exercise Room, Indoor Pool, Media Room, Visitor Parking

Location of the Property

1926 Lake Shore Boulevard W, Toronto, ON M6S 1A1

Community Sold Statistics

Ave Sold Price

Ave Days On Market

Based on last 90 days transactions for Condo Apartment Properties in the South Parkdale community.

Sales Representative
Office: (905) 565-9565

You like this property? Receive new, similar ones in your inbox.

We will also update you on other related information such as similar sold properties and market reports

Subscribe Now
Must be logged in to see the sold history
List Date Transaction List Price Sold/Leased Price DOM Status Transaction Date

More About 1926 Lake Shore Boulevard W #2706

1926 Lake Shore Boulevard W is a Condo Property located in the city of Toronto. 1926 Lake Shore Boulevard W has been listed For Lease at $2,950 since Apr 01 2026. This Condo Apartment Condo Apartment has 2 bedrooms, 2 bathrooms and is 700-799 sqft. Situated in South Parkdale neighbourhood , with the nearest intersection being Lake Shore & Windermere.

Listing Brokerage: CENTURY 21 GREEN REALTY INC.

}